Description du
Projet
Concours
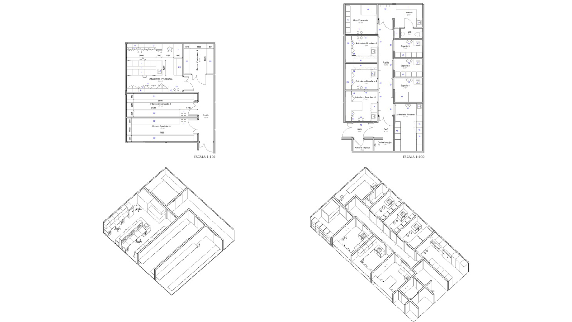
Réalisé pour le compte du ministère espagnol de l'Économie, de l'Industrie et de la Compétitivité, ce concours portait sur la conception, la construction et la réalisation d'un nouveau bâtiment au sein d'un important centre de recherche espagnol. L'agence espagnole 3G office (qui fait partie du réseau IDeA) a été notre partenaire local sur ce projet. Le bâtiment que nous avons imaginé - d'une superficie totale d'environ 1 200 m² - s'articule autour d'un patio central, un élément commun de la construction espagnole. Élément de base de l'architecture passive, la terrasse permet une ventilation naturelle et une régulation de la chaleur, tout en servant d'espace récréatif qui crée des opportunités de socialisation pour ses occupants. Autour de la cour centrale se déploie un couloir couvert qui alterne entre un passage partiellement ouvert - exposé aux éléments d'un côté - et un tunnel de verre entièrement fermé de l’autre, ce dernier donnant accès aux espaces intérieurs. En créant une barrière naturelle au vent dominant du nord et une protection contre les rayons du soleil venant du sud et de l'ouest, le bâtiment permet une utilisation prolongée de l'espace extérieur tout au long de l'année. L'aile sud est également conçue pour bénéficier de vues dégagées sur la ville très étendue de Salamanque, depuis les espaces communs et le patio du rez-de-chaussée. La conception de la structure - et son emprise restreinte sur le terrain– permet de protéger une zone de terrain qui pourra être consacrée à la nature, à la culture de plantes et à la végétation. De son côté, le bâtiment lui-même comprend un accès piéton et la connexion avec un parking à proximité. Le projet est également conçu pour structurer l'accès des utilisateurs en fonction des niveaux de confidentialité. Le rez-de-chaussée est consacré à des zones ouvertes d'échanges, tandis que les deux étages supérieurs - qui abritent les laboratoires et les bureaux privés - ont été imaginés de manière à empêcher tout accès indésirable. RBA a également tenu à éviter les couloirs étroits et monotones souvent associés aux laboratoires de recherche. L'équipe a ainsi privilégié les espaces polyvalents qui amplifient la sonorité "vivante" des personnes présentes dans le bâtiment.Détails du
Projet
Date : 2020
Localisation : Espagne
Surface : 1,200 m2
État : -









